
+46 (0)708 277 704 / erik@urbandesign.se
Team: Anders Ohlin, Helena Glantz
Projektinformation |
|
|---|---|
Kund |
Hudiksvalls kommun |
Plats |
Hudiksvall |
Status |
Tävlingsförslag 2007 |
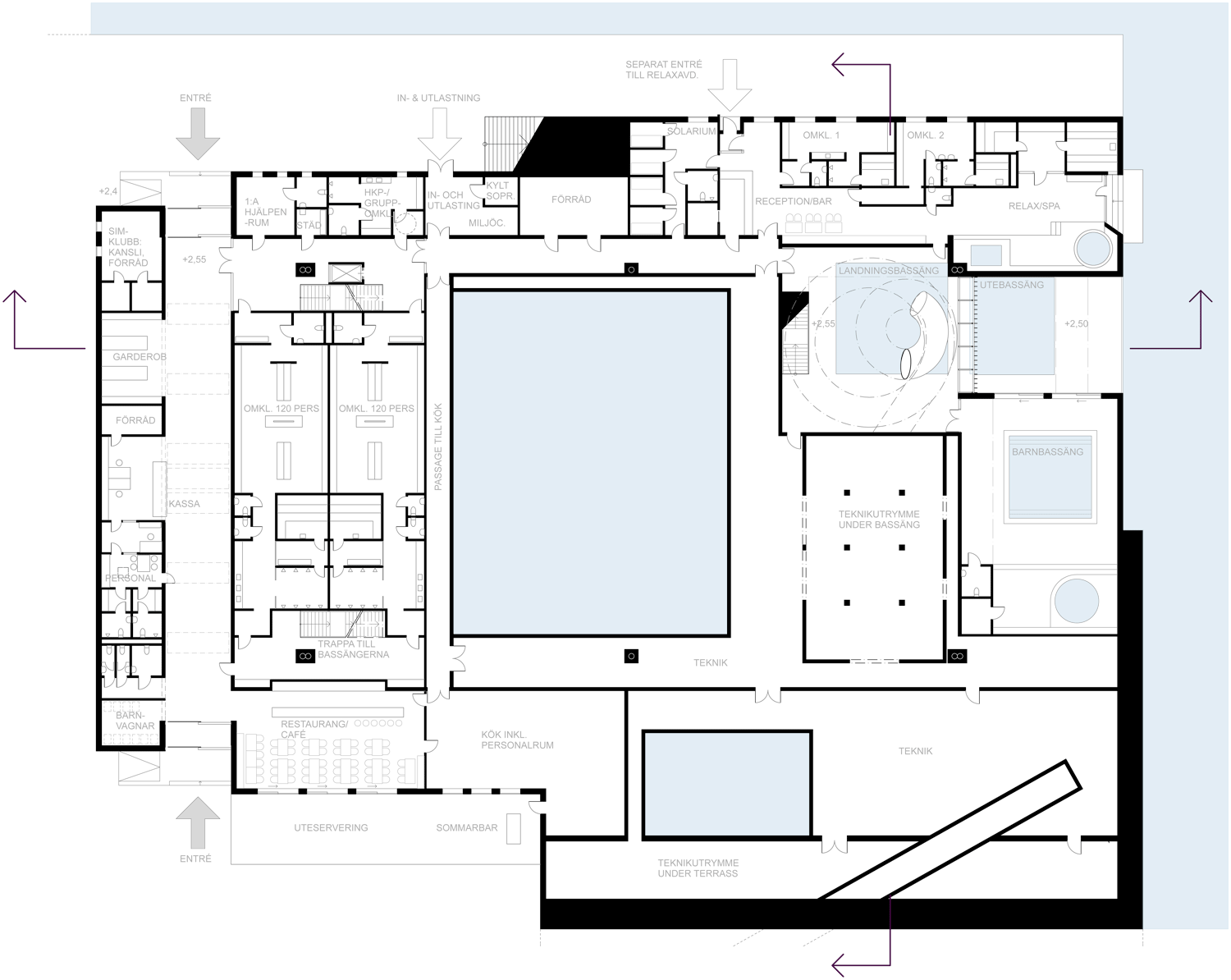
Förslaget Vågskål är ett skålformat rum som vilar på en platå som trappar ner i havet. Bassängerna sänks ner i platån och omges av en grönskimrande glaskropp.